Concorso di idee

Quattro idee per la nuova Casa della musica di Merate: ecco i progetti nel dettaglio

La struttura sorgerà in via Don Gnocchi, sull'area della degradata Cascina Galli: i professionisti hanno presentato le loro idee in commissione territorio in municipio sabato mattina.

Quattro idee per la nuova Casa della musica di Merate: ecco i progetti nel dettaglio

Quattro idee, proposte da altrettanti professionisti, durante la commissione territorio di sabato mattina, per mettere un nuovo tassello verso il sogno della nuova Casa della musica di Merate sull’area di Cascina Galli, in via Don Gnocchi. Un’opera nella quale l’Amministrazione comunale, la Banda Sociale Meratese, la Scuola di Musica San Francesco, il Coro Suono Antico e il Coro La Torr credono fortemente, avendo suggellato la propria unità d’intenti con la lettera firmata in municipio lo scorso 26 settembre.

Quattro idee per la Casa della musica

I quattro professionisti – l’architetto Paolo Omassi, gli ingegneri Marianna Comotti ed Eleonora Formenti, lo studio Msa Partners dell’architetto Roberto Sacchetto e lo studio Dla rappresentato dagli architetti Hugo Mura e Mara Giani – hanno presentato soluzioni diverse e senza dubbio suggestive, proponendo anche una stima dei costi di realizzazione che vanno tra i 4 e i 6 milioni di euro circa (la cifra dipenderà molto dalla capacità del Comune di poter ottenere bandi e finanziamenti). «Con la lettera abbiamo fissato un punto fermo di partenza dell’iter, oggi mettiamo un altro tassello cercando di dare un po’ di concretezza al percorso – ha affermato il sindaco Massimo Panzeri in apertura della commissione territorio di sabato mattina, durante la quale i quattro professionisti hanno illustrato le loro proposte – Sempre per dare una concretezza a quella che per ora è solo un’idea progettuale annuncio che come Comune abbiamo presentato una precandidatura in Fondazione Cariplo, che per il 2021 investirà sul territorio una importante fetta di risorse. E’ ovvio che la candidatura deve essere supportata anche da un progetto ed è per questo che ora ci troveremo tutti quanti a scegliere quello che riteniamo maggiormente aderente alle esigenze delle associazioni».

Il progetto dell’architetto Omassi

E’ partito dallo studio della storia di Cascina Galli, l’architetto Paolo Omassi, per predisporre il suo progetto, che sostanzialmente prevede la Casa della musica come una sorta di cascina moderna. «Siamo andati innanzitutto a vedere l’area, non ricordavo un abbandono così totale: le condizioni sono tali per cui un recupero sarebbe troppo dispendioso – ha premesso il professionista meratese – Abbiamo quindi fatto un’analisi per conoscere cosa è stata nel tempo questa cascina per il territorio, cioè un edificio con una funzione agricola ai piedi delle colline. Abbiamo poi guardato le caratteristiche che le cascine avevano in passato: un portico, una corte e un intonaco color sabbia. E da lì abbiamo cominciato a progettare». L’idea di una cascina, insomma, ma in chiave contemporanea, dove le quattro associazioni possano collaborare fianco a fianco. «Il concetto è quello di creare un ambiente permeabile, non spazi autonomi per le singole associazioni ma qualcosa che permetta un’intercambiabilità e una versatilità più alta possibile per il futuro. Al pian terreno sono previste due grandi sale prova, una grande per i cori e poi delle aule per la didattica: in fondo ci sarà un padiglione a vetri che si affaccia sul parco, che può essere utilizzato d’estate anche come palco. Nel giardino sono presenti dei piccoli padiglioni con delle tematiche legate alla musica. Al piano superiore ci saranno altre aule e una sorta di biblioteca-mediateca». Il costo complessivo stimato per la realizzazione è di circa 6.600.000 euro.

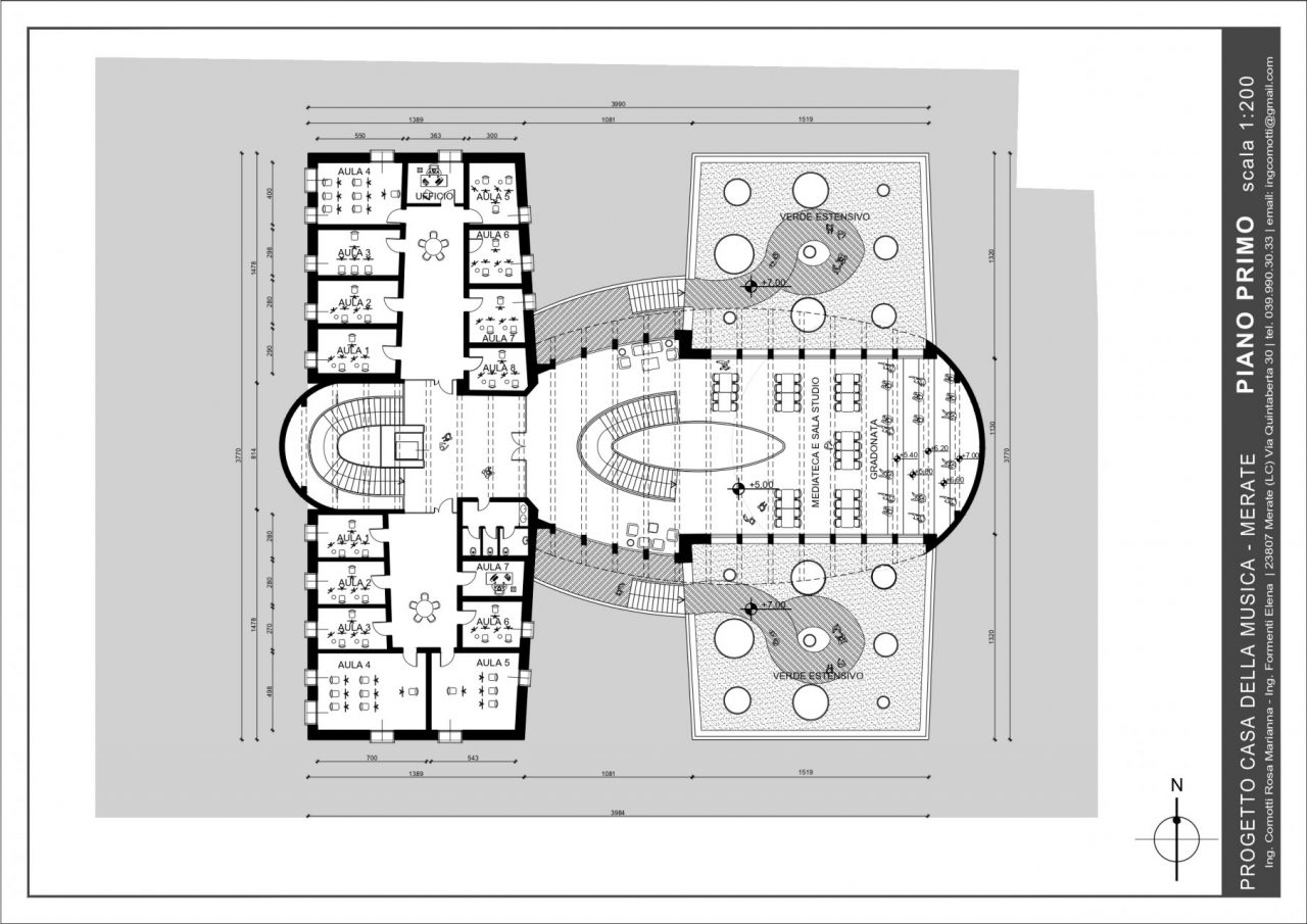
Il progetto degli ingegneri Comotti e Formenti

«Abbiamo un po’ osato, pensando che si tratta un edificio che deve guardare al 2025, ma soprattutto al futuro, al domani dei meratesi». Ha esordito così l’ingegnere Marianna Comotti, che insieme alla collega Elena Formenti ha proposto alla commissione territorio un’idea di Casa della musica molto moderna, con un costo di realizzazione stimato in circa 6 milioni di euro. «Questa casa si definirebbe un destination point: siamo sulle direttrici nord-sud, ben servita da parcheggi e facilmente raggiungibile dalla popolazione che viene da fuori città e che avendo a disposizione un luogo così può anche ampliarsi – ha esordito l’ingegnere meratese – Siamo inoltre al confine con la zona sportiva, dove si concentrano le attività pomeridiane dei ragazzi. L’obiettivo è cercare di rimanere nella fascia del costruito e abbiamo pensato che debba avere uno spazio comune che sia sì aperto, ma in realtà al chiuso, perché a nostro avviso un parco verrebbe sfruttato troppo poco durante l’anno». Grande l’attenzione all’ecologia. «Abbiamo pensato a delle coperture piane con un verde estensivo che possa portare benefici dal punto di vista idraulico e acustico e a dei piccoli rain garden: a nostro avviso se quest’opera presenta delle piccole eccellenze è anche più semplice andare alla ricerca di bandi specifici. Le facciate sono in cemento mangiasmog e all’interno avviene un ricircolo di aria naturale». Piccola curiosità: all’esterno verrebbe realizzato un parco sonoro per i bambini.

Il progetto dell’architetto Sacchetto

Il progetto probabilmente più avveniristico tra i quattro sul tavolo è stato quello illustrato dall’architetto Roberto Sacchetto dello studio Msa Partners, che ha ipotizzato la nuova Casa della musica non con una forma statica, ma sinusoidale, come una sorta di S nella cui «pancia» far nascere un parco fruibile per eventi all’aperto.
«Nel nostro studio siamo partiti dal concetto di onde sonore, riportandole in tre dimensioni e attraverso le quali poi andare a creare un edificio – ha raccontato il professionista raccontando la genesi del progetto presentato sabato mattina in municipio – Consideriamo che l’edificio confinerebbe con il magazzino di un piccolo centro commerciale, ricavare un parco in quella zona potrebbe non essere la scelta più adatta dal punto di vista estetico: lo spazio verde è stato quindi ricavato nella pancia di questa sinusoide». L’opera avrebbe ospiterebbe, al piano terra ingresso, hall, aule e in fondo due ulteriori grandi aule per la «celebrazione della musica» da parte della banda e della scuola di musica. «Abbiamo inserito all’interno dell’architettura i giardini pensili per includere il verde nell’edificio e poterne godere sia dal corridoio che dalla scala – ha proseguito il professionista – La zona destinata a uso caldaia o servizi è separata e nascosta al pubblico, nelle grandi vetrate verrebbero integrati dei pannelli fotovoltaici per la produzione di energia».

Il progetto degli architetti Mura e Giani

Una «rievocazione» di Cascina Galli, con esterni e interni in mattone a vista, con una piazza di ingresso e una corte «verde» fruibile per gli eventi all’aperto. Anche Lda – Laboratorio d’Architettura di Robbiate, rappresentato in commissione dagli architetti Hugo Mura e Mara Giani, ha sfruttato il concetto della cascina per sviluppare il suo progetto di Casa della musica. «Nel nostro progetto ci sono due aspetti principali esterni: una piazza pubblica e una corte inerbita, dove in quest’ultima potranno essere previste esibizioni musicali all’aperto – hanno spiegato i professionisti – All’esterno abbiamo posizionato un totem con il riferimento proprio alla Casa della musica. Abbiamo ipotizzato anche una nuova viabilità, con un senso unico in via don Gnocchi». La disposizione degli spazi interni prevede poi un piano interrato a uso autorimessa, deposito e con alcune aule studio destinate alle percussioni e una sala prove. La hall si affaccia sulla corte inerbita e dunque tra il piano terra e il primo piano si sviluppano sale e aule». La copertura, sia interna che esterna, riprendere il mattone a vista tipico delle cascine lombarde, ovviamente con l’utilizzo di materiali all’avanguardia e con coefficienti di efficienza energetica elevatissimi. La pavimentazione, tra l’interno e l’esterno, avrebbe una sorta di continuità. La stima dei costi complessivi oscilla tra i 3.800.000 e i 5.700.000 euro.

La soddisfazione di Pierpaolo Arlati

«Da ex amministratore non ho potuto occuparmi di un’opera del genere e sono felice di poterlo fare come presidente della banda – ha commentato con il cuore gonfio di gioia Pierpaolo Arlati – Non serve fare voli pindarici, consideriamo che l’area di Cascina Galli è piuttosto nascosta e per certi aspetti è un bene che non sia troppo collegata al centro, perché troppe persone nei paraggi potrebbero dare fastidio a chi fa musica». «Voglio ringraziare i partecipanti che ci hanno regalato delle belle suggestioni, abbiamo anche un po’ sognato, ma tutti hanno colto il senso delle richieste delle associazioni» ha aggiunto il sindaco Panzeri in conclusione di commissione. Alla soddisfazione dei vari soggetti coinvolti si è aggiunta quella del presidente della commissione Alessandro Vanotti, a sua volta architetteto, che ha affermato di «sapere bene quanto tempo ed energie ci vogliono per realizzare progetti di questa qualità» e il consigliere di minoranza Alessandro Pozzi, collegato in streaming: «Come gruppo avremmo auspicato collocazioni diverse, come ad esempio la valorizzazione di Villa Confalonieri. Comunque auspichiamo che venga portata a termine la nuova Casa della musica perché è un’opera importante per la nostra città».